1673 SE SEVEN MILE LN Albany, OR 97322

UPDATED:
Key Details
Property Type Single Family Home
Sub Type Single Family Residence
Listing Status Active
Purchase Type For Sale
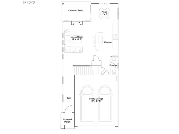
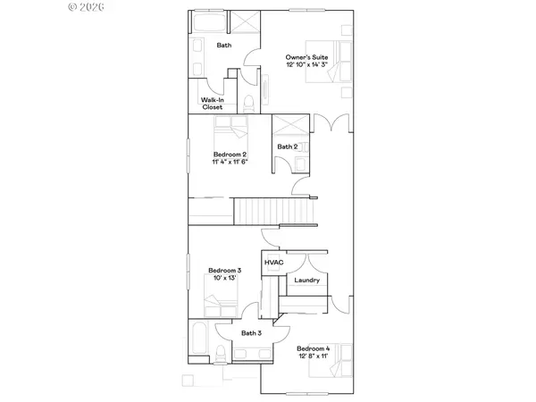
Square Footage 1,975 sqft
Price per Sqft $230
Subdivision Henshaw Farm
MLS Listing ID 319704992
Style Stories2, Craftsman
Bedrooms 4
Full Baths 3
HOA Fees $23/mo
HOA Y/N Yes
Year Built 2025
Annual Tax Amount $1,170
Tax Year 2025
Lot Size 5,227 Sqft
Property Sub-Type Single Family Residence
Property Description
Location
State OR
County Linn
Area _221
Rooms
Basement Crawl Space
Interior
Interior Features Garage Door Opener, Luxury Vinyl Plank, Luxury Vinyl Tile, Quartz, Wallto Wall Carpet, Washer Dryer
Heating Forced Air95 Plus
Cooling Central Air
Fireplaces Number 1
Fireplaces Type Gas
Appliance Disposal, Free Standing Gas Range, Gas Appliances, Island, Microwave, Pantry, Plumbed For Ice Maker, Quartz, Solid Surface Countertop, Stainless Steel Appliance
Exterior
Exterior Feature Fenced, Porch, Sprinkler, Yard
Parking Features Attached
Garage Spaces 2.0
View Territorial
Roof Type Composition,Shingle
Accessibility GarageonMain, KitchenCabinets, WalkinShower
Garage Yes
Building
Lot Description Level
Story 2
Foundation Pillar Post Pier
Sewer Public Sewer
Water Public Water
Level or Stories 2
Schools
Elementary Schools Tangent
Middle Schools Memorial
High Schools West Albany
Others
Senior Community No
Acceptable Financing Cash, Conventional, FHA, VALoan
Listing Terms Cash, Conventional, FHA, VALoan
Virtual Tour https://homejab.vr-360-tour.com/e/amgBjOlDoMc/e

GET MORE INFORMATION







